EQ Smart-Level System
Fitment for #8757UPSA
SUPPORT DOCUMENTS
- Quick Tips
- Operation & Installation Manuals
- Replacement Part Instructions
- Parts Identification Documents
- Troubleshooting Documents
- EQ Smart-Level Bluetooth Operation
- EQ Smart-Level Quick Start Guide
- EQ Smart-Level Quick Start Guide – Trailer
EQ SYSTEMS SUPPORT
Phone: 1-800-846-9659
Also note:
- All warranty authorization must come from the EQ Systems warranty department.
- All EQ Systems hydraulics systems use Dexron ATF Fluid.
*Info needed for tech support: Vehicle year, make, model, floor plan. EQ pump model number, touchpad number, etc. Also original date of retail purchase, if warranty.
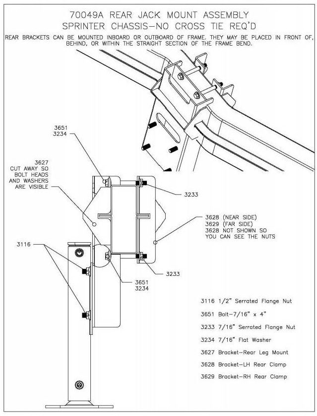
Fitment for Mercedes Sprinter Chassis 2023 and Newer – Pat. 12,319,247


*Please confirm there is the proper spacing for the jack and pump brackets to mount. if not, modifications to the brackets may be necessary
*This is our universal kit based on pump placement noted in the above pictures, if different pump placement is required, and special hose lengths are needed. Please note this on the order and we will be happy to accommodate. *
*Battery Type and Size A minimum group 24 RV/marine-type battery is recommended. Battery rating should be a minimum 100 RC (Reserve capacity) with a 500 CCA (Cold Cranking Amperage). The higher these numbers the better. Common types are flooded lead acid, Gel, and AGM (Absorbed Glass Mat). Note: Some lithium batteries are not suited for this application. As they cannot provide the high running amperage and surges. Check with the battery supplier/manufacturer for info on this. *
Please note: Installation of our EQ Smart-Level system is intended to be performed by someone that is familiar with hydraulic, mechanical, and electrical systems, in addition to workplace safety. Installation will require ramps/vehicle lift.







